

3,179 Sq. Ft. Residence - Temeculaa, CA

4,191 Sq. Ft. Residence - Temecula, CA

4416 Sq. Ft. Residence - Yermo, CA
 |
 |
 |
 |

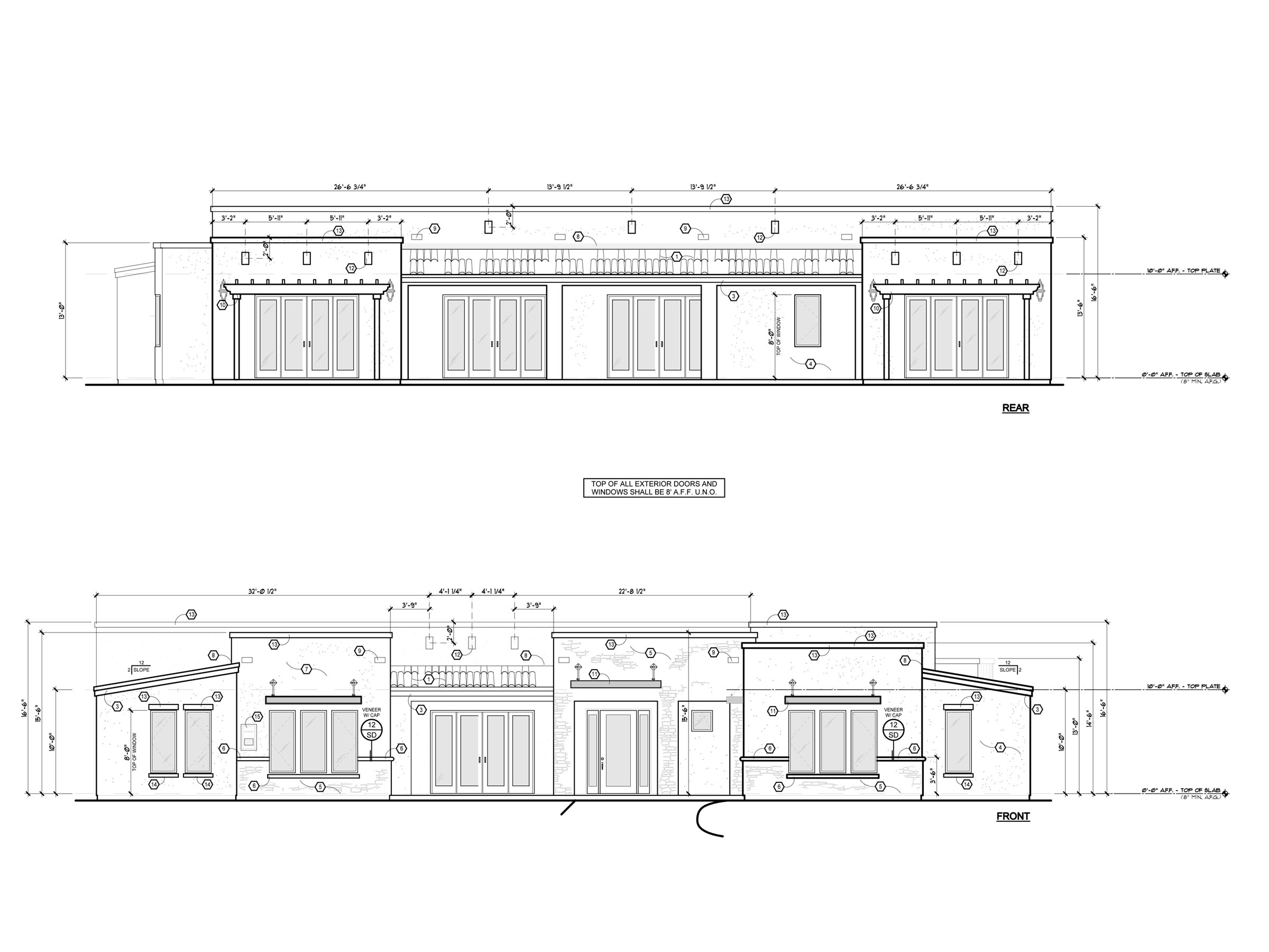
4200 Sq. Ft. Commercial Building - Hesperia, CA
 |
 |
 |
 |

3712 Sq. Ft. Residence - Temecula, CA
 |
 |
 |
 |
 |
 |
 |

Express Gun Locker - Hesperia, CA
 |
 |
 |
 |
 |

2810 Sq. Ft. Residence - Apple Valley, CA
 |
 |
 |
 |
 |
 |

Louisiana Cajun Seafood House II - Victorville, CA
Louisiana Cajun Seafood House - Hesperia, CA

9,998 Sq. Ft. Industrial/Commercial Center - Hesperia, CA

3,048 Sq. Ft. Residence - Kanab, UT

Tilted Kilt Pub & Eatery - Victorville / Rancho Cucamonga, CA

6,817 Sq. Ft. Residence - Oak Glen, CA
|